דף הבית
פרוייקטים
אישור וקידום תב"ע
בלוג
אודות
יצירת קשר
A | I רמת גן
דף הבית
פרוייקטים
אישור וקידום תב"ע
בלוג
אודות
יצירת קשר
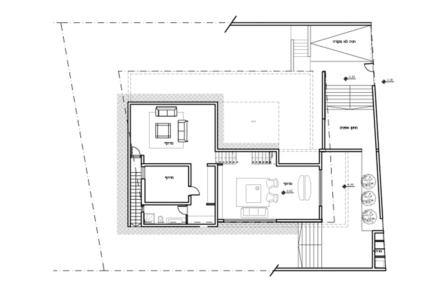
אודות הפרוייקט
A | I רמת גן
תכנון משותף עם מיכל שיש - עיצוב פנים